SIMPLEZA Y FUNCIONALIDAD.
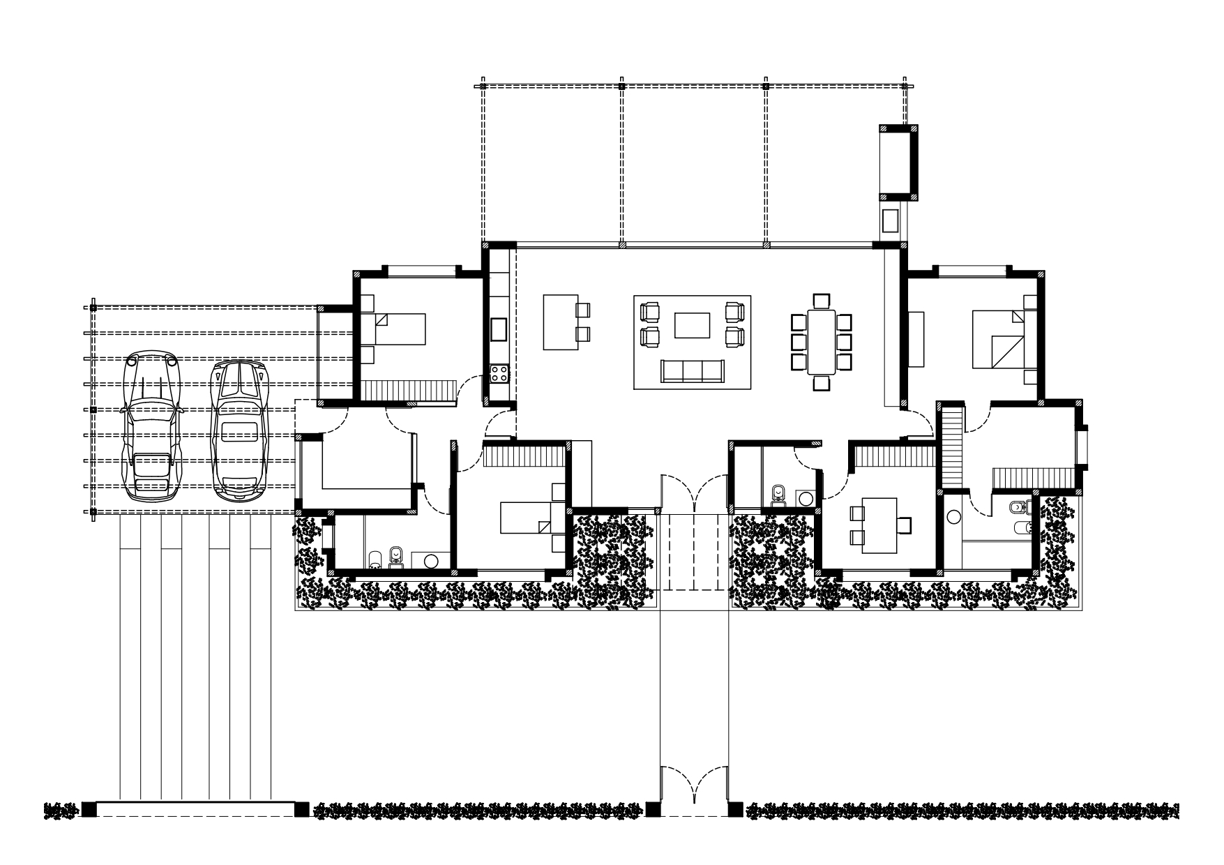
Al norte de la ciudad de Concordia se ubica Casa Los Aromos, una vivienda que encuentra su inspiración en la tradicional casa de campo. Las galerías, con su encanto atemporal, se erigen como las protagonistas de este proyecto.
En el corazón de la casa, un espacio central conecta el living, el comedor y la cocina a través de una isla diseñada a medida, creando una fluidez que invita a la convivencia.
Las aberturas de vidrio en doble altura inundan el ambiente de sol y luz natural, proporcionando vistas ininterrumpidas al jardín y al paisaje circundante, integrando el exterior con el interior de manera armoniosa.
Una paleta de colores neutros y materiales nobles como la madera confieren carácter y calidez a los espacios, logrando una estética moderna y acogedora, pensada para disfrutar la vida en familia.















